Sveti Nicola 2
Продаден
Паркомясто 2 Жилищна сграда Sveti Nicola
-1 Етаж
12,00 м2 Чиста площ
31,00 м2 Обща площ
0 Цена в евро
0 лв. Цена в лева
1075286 Код
139 Гледания
Район: Бриз
Строителсво: Тухла
Етаж: -1 от 5
Състояние: Ново
Издаване: БДС
Асансьор Двор Паркомясто
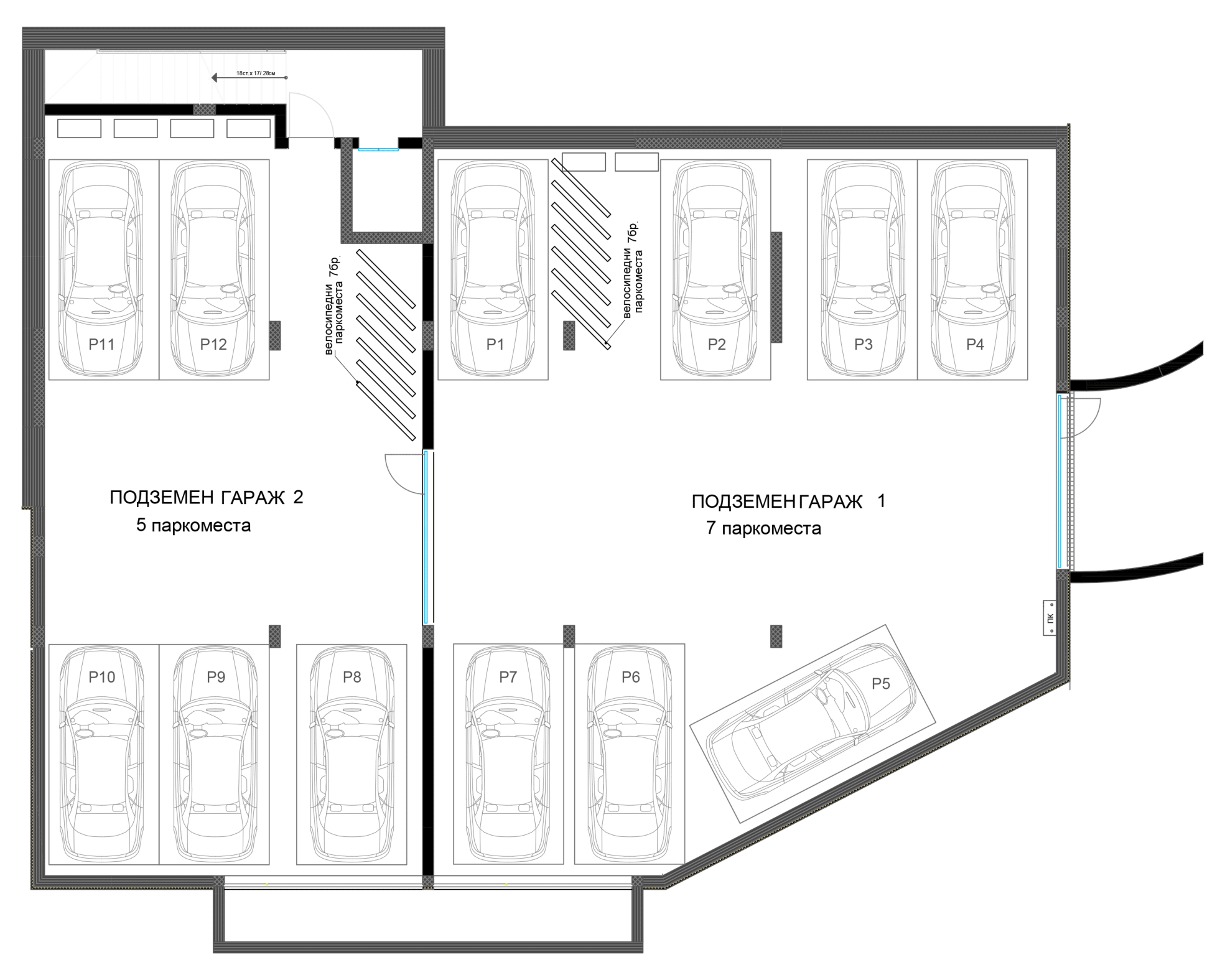
Закрито Паркомясто 2 ( ново строителство ) с код №: 1075286 на с площ 31,00 м2 намиращ се на етаж minus-1 от 5 етажа в Жилищна сграда Sveti Nicola - район Бриз, гр. Варна, като типа на сторителството е тухла. Дата на завършване ( Акт 16 ) , състояние на издаване на апартамента - БДС.

>>> Направете запитване за Закрито Паркомясто 2


Схема на етаж -1

Жилищна сграда Sveti Nicola

Локация

Жилищна сграда Sveti Nicola

гр. Варна, ул."Братя Георгиевич" № 36, етаж 5, офис 16

Научете първи за новите оферти

Получавайте актуална информация за пазара на недвижими имоти

Агенция за недвижими имоти - Ekipat

Sveti Nicola

Жилищна сграда

052 600 077

office@ekipat.bg

гр. Варна, ул."Братя Георгиевич" № 36, етаж 5, офис 16

гр. Варна, ул."Братя Георгиевич" № 36, етаж 5, офис 16

Свободен Код: 1075286
Паркомясто 2 Жилищна сграда
minus-1 Етаж
12,00 м2 Чиста площ
31,00 м2 Обща площ
0 Цена

Описание:

Схема на етаж minus-1

Жилищна сграда Sveti Nicola

© 2026 Екипът, All rights reserved.

Дизайн, изработка и SEO от Web Factor България - Изработка на уеб сайтове и SEO оптимизация

Филтър

Тип имот

Не намирате това, което търсите? Обадете ни се!
Можем да го намерим за Вас!

гр. Варна, ул."Братя Георгиевич" № 36, етаж 5, офис 16

EKIPAT
 - 
English
 - 
en
French
 - 
fr
German
 - 
de
Russian
 - 
ru
Turkish
 - 
tr
Bulgarian
 - 
bg
Обади се