Panorama Asparuhovo
Избери етаж и виж апартаментите

Жилищна сграда Panorama Asparuhovo

гр. Варна, ул."Братя Георгиевич" № 36, етаж 5, офис 16

Представяме ви новата жилищна сграда „Панорама Аспарухово“, разположена в привлекателния квартал Аспарухово, в местност „Платото“ на ул. Борис Киряков. Парцелът обхваща площ от 1347 кв.м., като застроената площ е 475 кв.м., а общата разгърната застроена площ достига 3300 кв.м. Сградата предлага модерни и комфортни жилища за своите бъдещи обитатели.

Жилищната сграда „Панорама Аспарухово“ се отличава с прекрасна гледка към морето от почти всеки апартамент. Проектирана в съвременен стил, тя включва 6 жилищни етажа и подземно ниво. На разположение са 33 апартамента с разнообразна площ – двустайни, тристайни и четиристайни, с оптимизирани пространства, които очакват своите нови собственици. За удобство на обитателите са предвидени 17 подземни и 19 надземни паркоместа, гарантиращи сигурно и удобно паркиране.

Свободни:

Апартаменти: 13
Паркоместа: 9
Асансьор Паркомясто Електричество Входът се заключва Масивна външна врата Луксозни общи части

Апартаменти

Жилищна сграда Panorama Asparuhovo

Свободни
имота:
13
Име Вход Етаж Тип Чиста площ Площ Обща площ Цена Статус
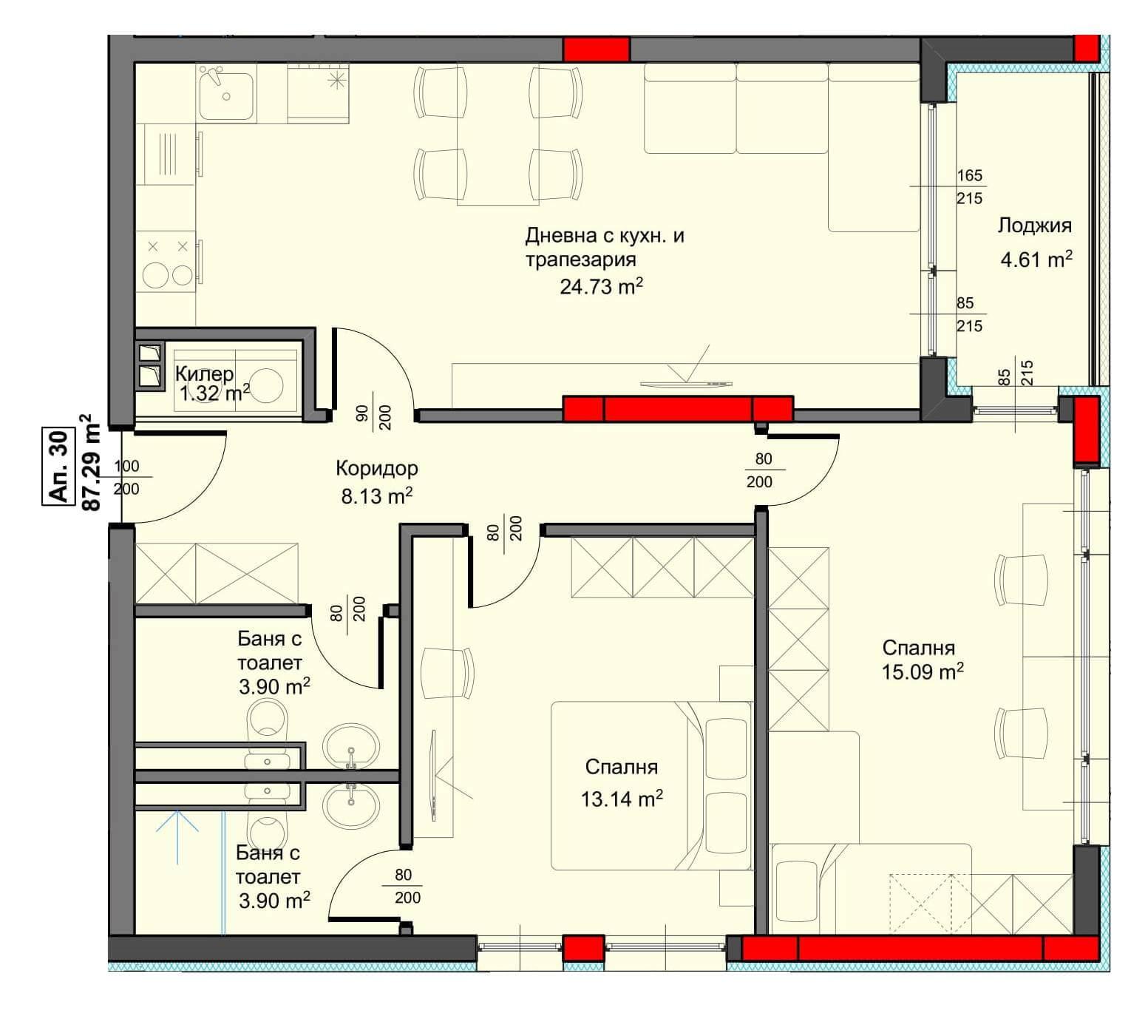
А30 Апартамент 30
А
5
Тристаен
87,29 м2
99,11 м2
160 063 €
Свободен
А9 Апартамент 9
А
2
Двустаен
56,40 м2
63,37 м2
-
Продаден
А20 Апартамент 20
А
4
Двустаен
55,58 м2
63,03 м2
101 793 €
Продаден
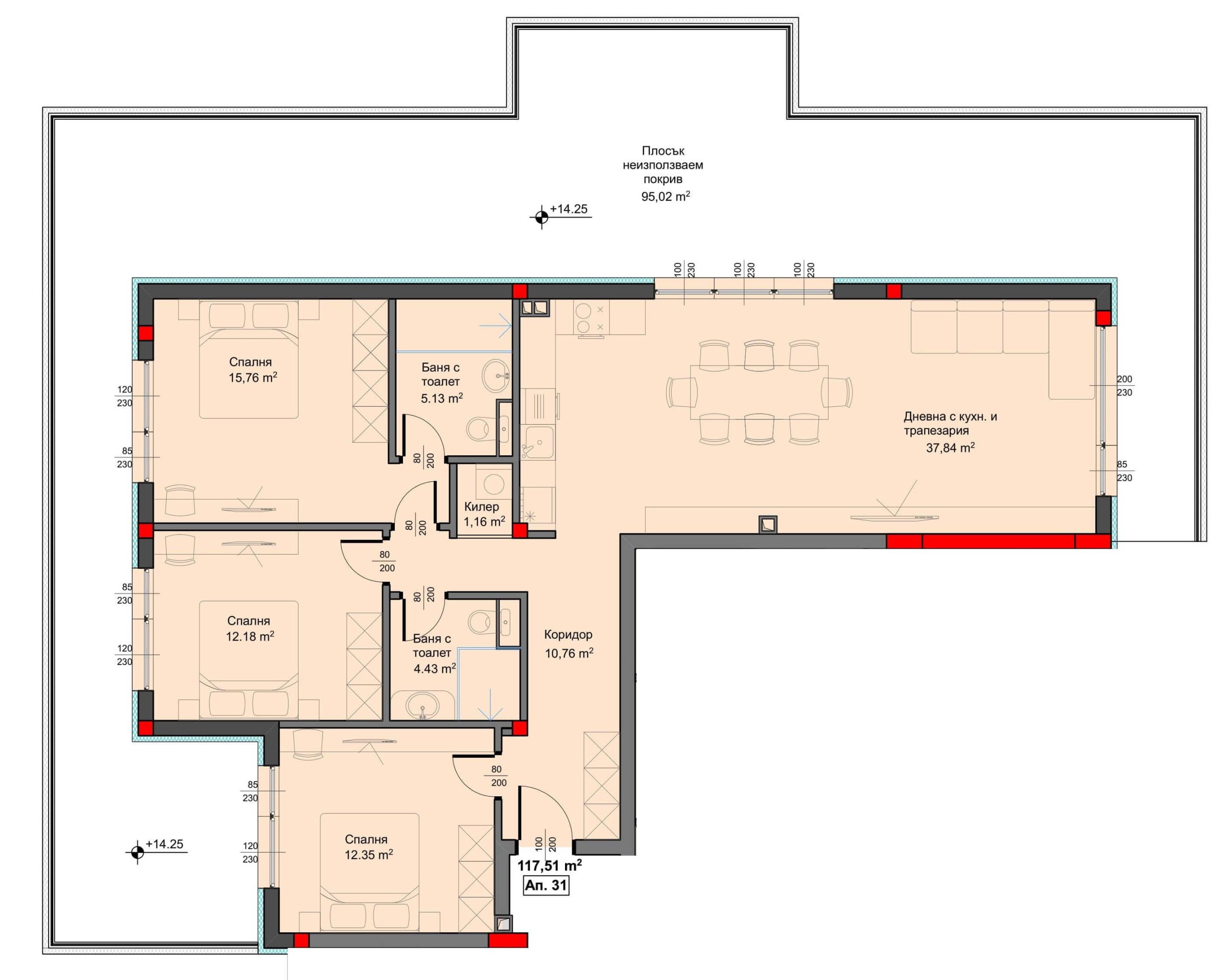
А31 Апартамент 31
А
6
Четиристаен
117,51 м2
226,63 м2
263 703 €
Свободен
А10 Апартамент 10
А
2
Тристаен
88,14 м2
99,15 м2
-
Продаден
А21 Апартамент 21
А
4
Двустаен
56,40 м2
63,52 м2
-
Продаден
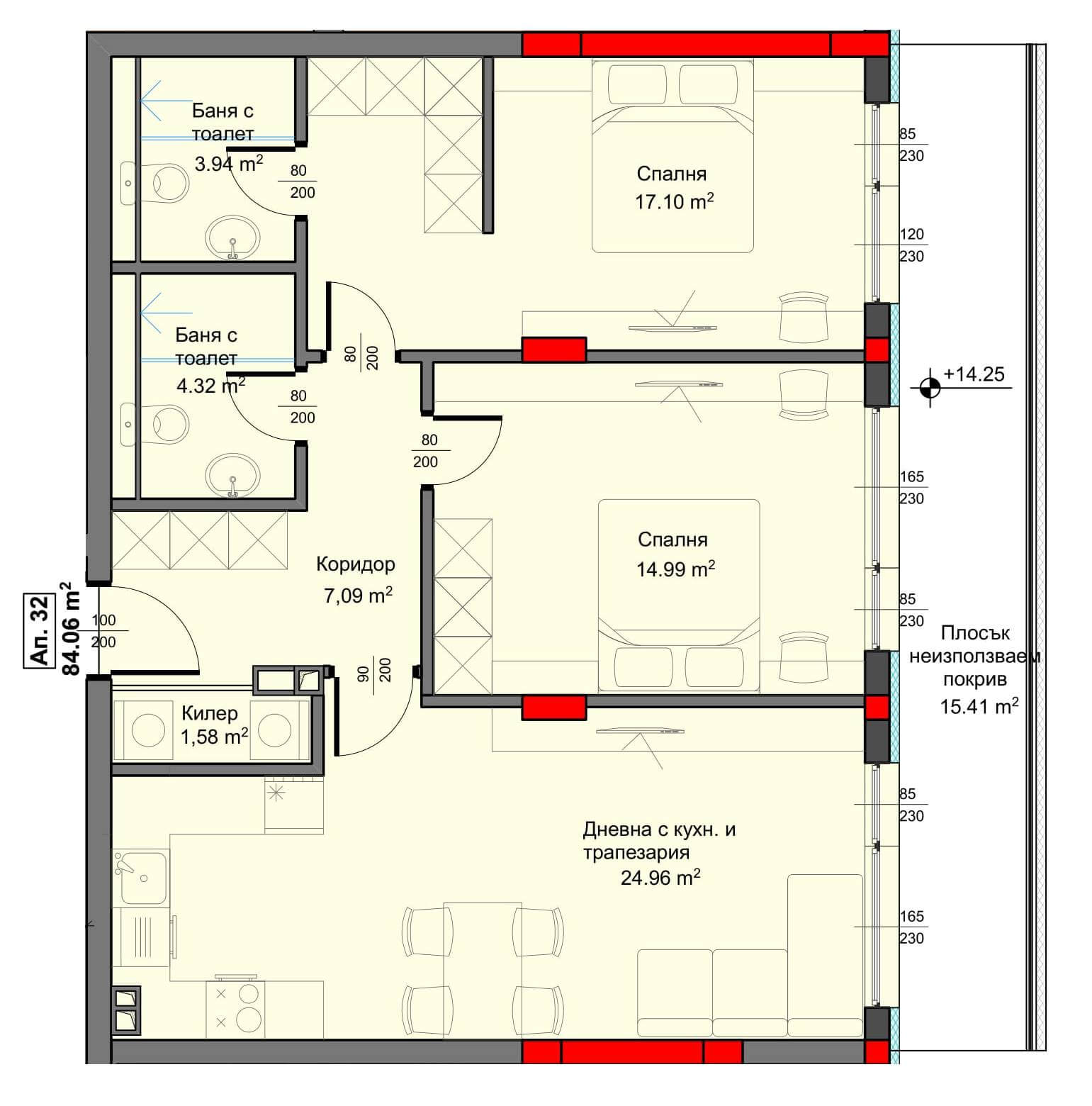
А32 Апартамент 32
А
6
Тристаен
84,06 м2
109,87 м2
182 934 €
Свободен
А11 Апартамент 11
А
2
Двустаен
61,83 м2
69,79 м2
-
Продаден
А22 Апартамент 22
А
4
Тристаен
88,14 м2
99,38 м2
-
Продаден
А1 Апартамент 1
А
1
Двустаен
54,88 м2
116,51 м2
-
Продаден
А33 Апартамент 33
А
6
Тристаен
85,21 м2
144,76 м2
181 365 €
Свободен
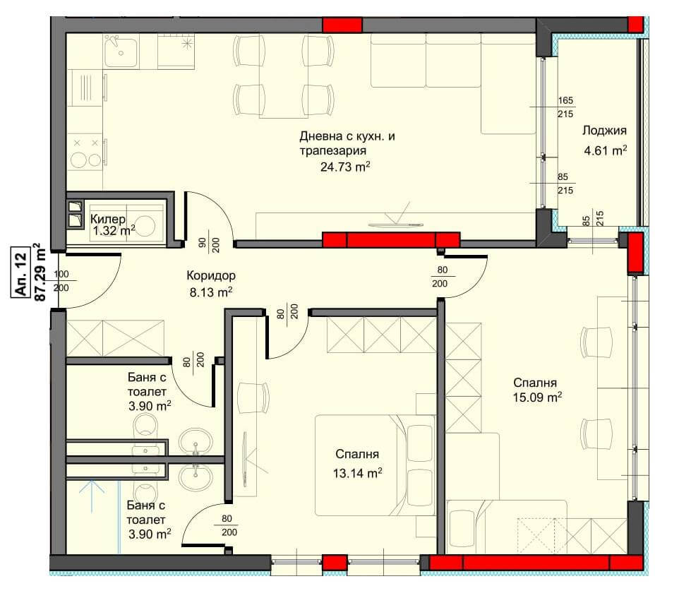
А12 Апартамент 12
А
2
Тристаен
87,29 м2
98,87 м2
154 732 €
Свободен
А23 Апартамент 23
А
4
Двустаен
61,83 м2
69,96 м2
-
Продаден
А2 Апартамент 2
А
1
Двустаен
54,63 м2
93,31 м2
97 024 €
Продаден
А13 Апартамент 13
А
3
Тристаен
78,91 м2
89,69 м2
142 607 €
Свободен
А24 Апартамент 24
А
4
Тристаен
87,29 м2
99,11 м2
-
Продаден
А3 Апартамент 3
А
1
Двустаен
56,40 м2
95,82 м2
-
Продаден
А14 Апартамент 14
А
3
Двустаен
55,58 м2
63,03 м2
-
Продаден
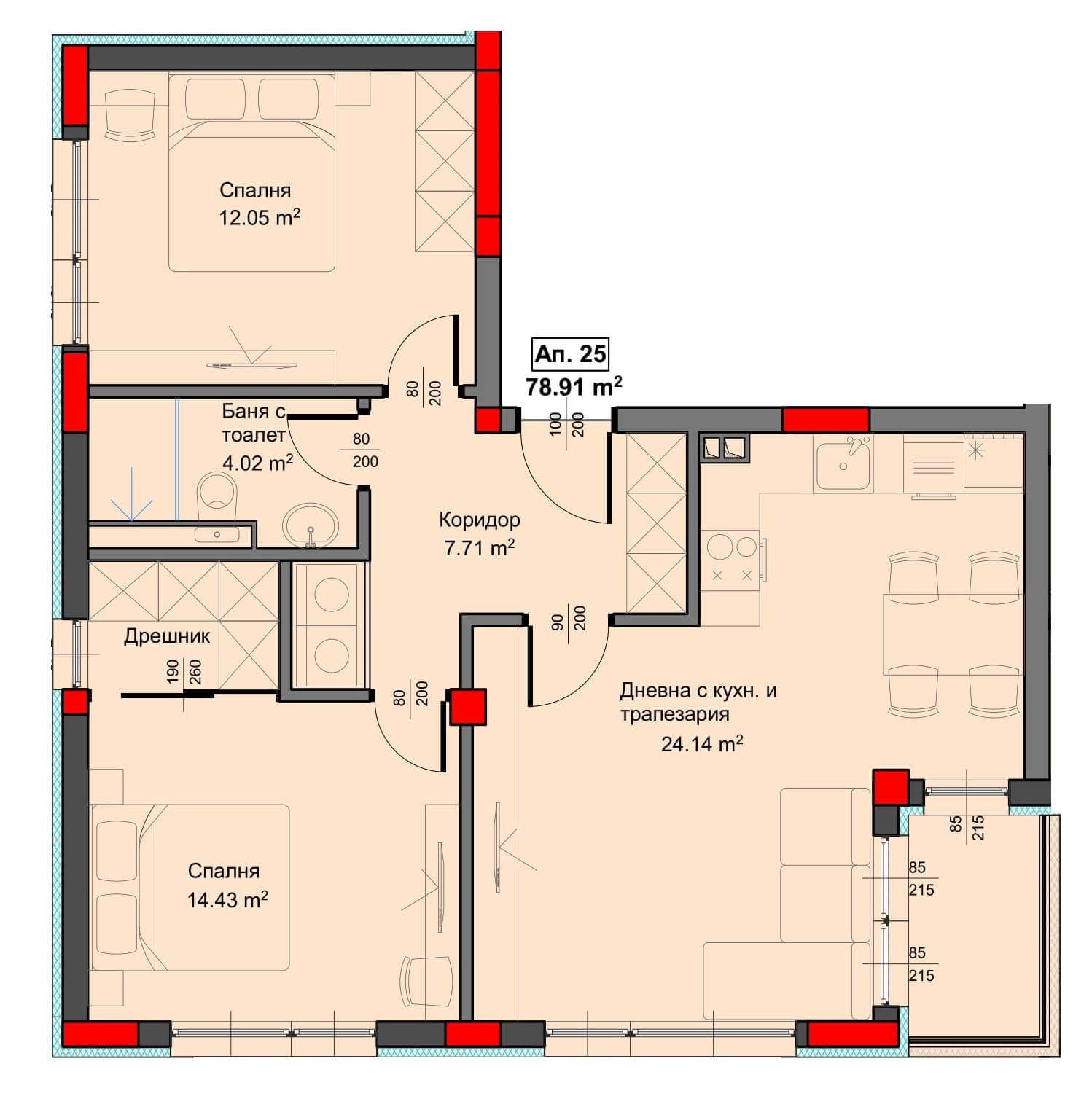
А25 Апартамент 25
А
5
Тристаен
78,91 м2
89,69 м2
144 849 €
Свободен
А4 Апартамент 4
А
1
Тристаен
87,59 м2
110,94 м2
152 733 €
Свободен
А15 Апартамент 15
А
3
Двустаен
56,40 м2
63,52 м2
-
Продаден
А26 Апартамент 26
А
5
Двустаен
55,58 м2
63,03 м2
-
Продаден
А5 Апартамент 5
А
1
Двустаен
61,83 м2
84,88 м2
-
Продаден
А16 Апартамент 16
А
3
Тристаен
88,14 м2
99,38 м2
-
Продаден
А27 Апартамент 27
А
5
Двустаен
56,40 м2
63,52 м2
-
Продаден
А6 Апартамент 6
А
1
Тристаен
87,32 м2
149,55 м2
158 831 €
Свободен
А17 Апартамент 17
А
3
Двустаен
61,83 м2
69,96 м2
-
Продаден
А28 Апартамент 28
А
5
Тристаен
88,14 м2
99,38 м2
-
Продаден
А7 Апартамент 7
А
2
Тристаен
78,91 м2
144,42 м2
148 930 €
Свободен
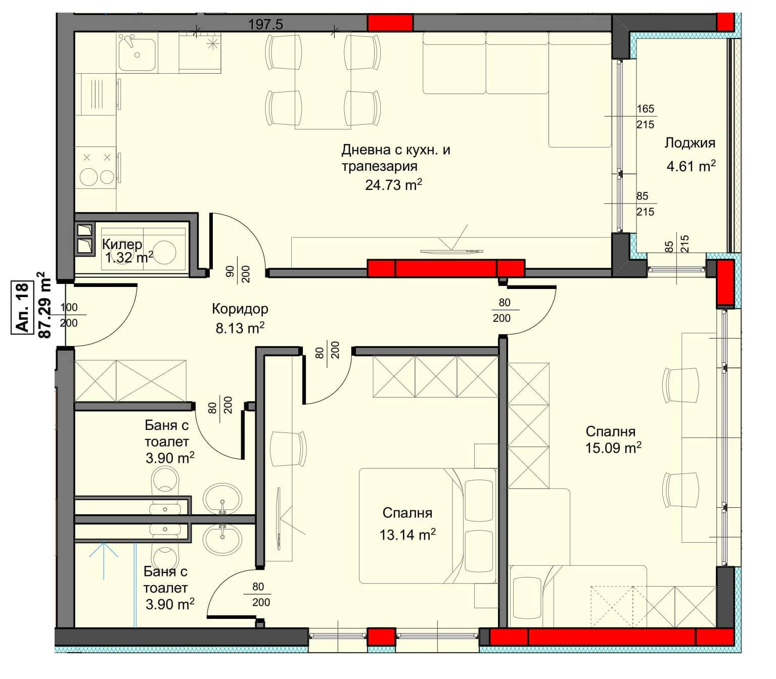
А18 Апартамент 18
А
3
Тристаен
87,29 м2
99,11 м2
157 585 €
Свободен
А29 Апартамент 29
А
5
Двустаен
61,83 м2
69,96 м2
-
Продаден
А8 Апартамент 8
А
2
Двустаен
55,58 м2
62,88 м2
98 407 €
Свободен
А19 Апартамент 19
А
4
Тристаен
78,91 м2
89,69 м2
144 849 €
Свободен
Апартамент А5
Апартамент А5
Етаж: 4
Спални: 1
Площ: 70,15 м2
Свободен

Най-популярно от тази сграда:

Продава
Ново строителство
Код: 1075476
гр. Варна, ул."Братя Георгиевич" № 36, етаж 5, офис 16 144 849 €
283 300 лв.
Тристаен 89,69 м2
Продава
Ново строителство
Код: 1075481
гр. Варна, ул."Братя Георгиевич" № 36, етаж 5, офис 16 160 063 €
313 056 лв.
Тристаен 99,11 м2
Продава
Ново строителство
Код: 1075482
гр. Варна, ул."Братя Георгиевич" № 36, етаж 5, офис 16 263 703 €
515 758 лв.
Четиристаен 226,63 м2
Продава
Ново строителство
Код: 1075455
гр. Варна, ул."Братя Георгиевич" № 36, етаж 5, офис 16 152 733 €
298 720 лв.
Тристаен 110,94 м2
Продава
Ново строителство
Код: 1075483
гр. Варна, ул."Братя Георгиевич" № 36, етаж 5, офис 16 182 934 €
357 788 лв.
Тристаен 109,87 м2
Продава
Ново строителство
Код: 1075457
гр. Варна, ул."Братя Георгиевич" № 36, етаж 5, офис 16 158 831 €
310 646 лв.
Тристаен 149,55 м2
Продава
Ново строителство
Код: 1075484
гр. Варна, ул."Братя Георгиевич" № 36, етаж 5, офис 16 181 365 €
354 719 лв.
Тристаен 144,76 м2
Продава
Ново строителство
Код: 1075458
гр. Варна, ул."Братя Георгиевич" № 36, етаж 5, офис 16 148 930 €
291 282 лв.
Тристаен 144,42 м2
Продава
Ново строителство
Код: 1075459
гр. Варна, ул."Братя Георгиевич" № 36, етаж 5, офис 16 98 407 €
192 467 лв.
Двустаен 62,88 м2
Продава
Ново строителство
Код: 1075463
гр. Варна, ул."Братя Георгиевич" № 36, етаж 5, офис 16 154 732 €
302 629 лв.
Тристаен 98,87 м2
Продава
Ново строителство
Код: 1075464
гр. Варна, ул."Братя Георгиевич" № 36, етаж 5, офис 16 142 607 €
278 915 лв.
Тристаен 89,69 м2
Продава
Ново строителство
Код: 1075469
гр. Варна, ул."Братя Георгиевич" № 36, етаж 5, офис 16 157 585 €
308 209 лв.
Тристаен 99,11 м2
Продава
Ново строителство
Код: 1075470
гр. Варна, ул."Братя Георгиевич" № 36, етаж 5, офис 16 144 849 €
283 300 лв.
Тристаен 89,69 м2

Паркоместа и гаражи

Жилищна сграда Panorama Asparuhovo

Свободни
паркоместа:
9
Име Вход Тип Площ Обща площ Цена Статус
30 Паркомясто 30
-
Открито
12,50 м2
-
Продаден
9 Паркомясто 9
-
Закрито
15,46 м2
14 500 €
Свободен
20 Паркомясто 20
-
Открито
12,50 м2
-
Продаден
31 Паркомясто 31
-
Открито
12,50 м2
9 500 €
Свободен
10 Паркомясто 10
-
Закрито
18,65 м2
15 000 €
Продаден
21 Паркомясто 21
-
Открито
12,50 м2
-
Продаден
32 Паркомясто 32
-
Открито
12,50 м2
9 500 €
Свободен
11 Паркомясто 11
-
Закрито
15,60 м2
14 500 €
Резервиран
22 Паркомясто 22
-
Открито
12,50 м2
10 000 €
Продаден
1 Паркомясто 1
-
Закрито
33,98 м2
28 516 €
Свободен
33 Паркомясто 33
-
Открито
12,50 м2
-
Продаден
12 Паркомясто 12
-
Закрито
18,25 м2
13 000 €
Резервиран
23 Паркомясто 23
-
Открито
12,50 м2
10 000 €
Продаден
2 Паркомясто 2
-
Закрито
22,92 м2
-
Резервиран
34 Паркомясто 34
-
Открито
13,33 м2
-
Продаден
13 Паркомясто 13
-
Закрито
17,60 м2
-
Продаден
24 Паркомясто 24
-
Открито
12,50 м2
10 000 €
Резервиран
3 Паркомясто 3
-
Закрито
26,25 м2
-
Продаден
35 Паркомясто 35
-
Открито
12,50 м2
9 500 €
Свободен
14 Паркомясто 14
-
Закрито
13,20 м2
14 000 €
Продаден
25 Паркомясто 25
-
Открито
12,50 м2
10 000 €
Резервиран
4 Паркомясто 4
-
Закрито
21,94 м2
-
Продаден
36 Паркомясто 36
-
Открито
12,50 м2
9 500 €
Свободен
15 Паркомясто 15
-
Закрито
13,20 м2
14 000 €
Резервиран
26 Паркомясто 26
-
Открито
12,27 м2
9 500 €
Свободен
5 Паркомясто 5
-
Закрито
27,76 м2
-
Продаден
16 Паркомясто 16
-
Закрито
12,63 м2
14 000 €
Свободен
27 Паркомясто 27
-
Открито
12,50 м2
9 500 €
Свободен
6 Паркомясто 6
-
Закрито
26,91 м2
-
Продаден
17 Паркомясто 17
-
Закрито
16,28 м2
-
Продаден
28 Паркомясто 28
-
Открито
12,50 м2
-
Продаден
7 Паркомясто 7
-
Закрито
26,21 м2
-
Продаден
18 Паркомясто 18
-
Открито
12,50 м2
-
Продаден
29 Паркомясто 29
-
Открито
12,50 м2
-
Продаден
8 Паркомясто 8
-
Закрито
19,72 м2
12 500 €
Резервиран
19 Паркомясто 19
-
Открито
12,50 м2
-
Продаден

Най-популярно от тази сграда:

Продава
Ново строителство
Код: 1075516
гр. Варна, ул."Братя Георгиевич" № 36, етаж 5, офис 16
Открито 12,50 м2
Продава
Ново строителство
Код: 1075493
гр. Варна, ул."Братя Георгиевич" № 36, етаж 5, офис 16 14 500 €
28 360 лв.
Закрито 15,46 м2
Продава
Ново строителство
Код: 1075506
гр. Варна, ул."Братя Георгиевич" № 36, етаж 5, офис 16
Открито 12,50 м2
Продава
Ново строителство
Код: 1075517
гр. Варна, ул."Братя Георгиевич" № 36, етаж 5, офис 16 9 500 €
18 580 лв.
Открито 12,50 м2
Продава
Ново строителство
Код: 1075494
гр. Варна, ул."Братя Георгиевич" № 36, етаж 5, офис 16 15 000 €
29 337 лв.
Закрито 18,65 м2
Продава
Ново строителство
Код: 1075507
гр. Варна, ул."Братя Георгиевич" № 36, етаж 5, офис 16
Открито 12,50 м2
Продава
Ново строителство
Код: 1075518
гр. Варна, ул."Братя Георгиевич" № 36, етаж 5, офис 16 9 500 €
18 580 лв.
Открито 12,50 м2
Продава
Ново строителство
Код: 1075495
гр. Варна, ул."Братя Георгиевич" № 36, етаж 5, офис 16 14 500 €
28 360 лв.
Закрито 15,60 м2
Продава
Ново строителство
Код: 1075508
гр. Варна, ул."Братя Георгиевич" № 36, етаж 5, офис 16 10 000 €
19 558 лв.
Открито 12,50 м2
Продава
Ново строителство
Код: 1075485
гр. Варна, ул."Братя Георгиевич" № 36, етаж 5, офис 16 28 516 €
55 772 лв.
Закрито 33,98 м2
Продава
Ново строителство
Код: 1075519
гр. Варна, ул."Братя Георгиевич" № 36, етаж 5, офис 16
Открито 12,50 м2
Продава
Ново строителство
Код: 1075496
гр. Варна, ул."Братя Георгиевич" № 36, етаж 5, офис 16 13 000 €
25 426 лв.
Закрито 18,25 м2
Продава
Ново строителство
Код: 1075509
гр. Варна, ул."Братя Георгиевич" № 36, етаж 5, офис 16 10 000 €
19 558 лв.
Открито 12,50 м2
Продава
Ново строителство
Код: 1075486
гр. Варна, ул."Братя Георгиевич" № 36, етаж 5, офис 16
Закрито 22,92 м2
Продава
Ново строителство
Код: 1075520
гр. Варна, ул."Братя Георгиевич" № 36, етаж 5, офис 16
Открито 13,33 м2
Продава
Ново строителство
Код: 1075497
гр. Варна, ул."Братя Георгиевич" № 36, етаж 5, офис 16
Закрито 17,60 м2
Продава
Ново строителство
Код: 1075510
гр. Варна, ул."Братя Георгиевич" № 36, етаж 5, офис 16 10 000 €
19 558 лв.
Открито 12,50 м2
Продава
Ново строителство
Код: 1075487
гр. Варна, ул."Братя Георгиевич" № 36, етаж 5, офис 16
Закрито 26,25 м2
Продава
Ново строителство
Код: 1075521
гр. Варна, ул."Братя Георгиевич" № 36, етаж 5, офис 16 9 500 €
18 580 лв.
Открито 12,50 м2
Продава
Ново строителство
Код: 1075498
гр. Варна, ул."Братя Георгиевич" № 36, етаж 5, офис 16 14 000 €
27 382 лв.
Закрито 13,20 м2
Продава
Ново строителство
Код: 1075511
гр. Варна, ул."Братя Георгиевич" № 36, етаж 5, офис 16 10 000 €
19 558 лв.
Открито 12,50 м2
Продава
Ново строителство
Код: 1075488
гр. Варна, ул."Братя Георгиевич" № 36, етаж 5, офис 16
Закрито 21,94 м2
Продава
Ново строителство
Код: 1075522
гр. Варна, ул."Братя Георгиевич" № 36, етаж 5, офис 16 9 500 €
18 580 лв.
Открито 12,50 м2
Продава
Ново строителство
Код: 1075499
гр. Варна, ул."Братя Георгиевич" № 36, етаж 5, офис 16 14 000 €
27 382 лв.
Закрито 13,20 м2
Продава
Ново строителство
Код: 1075512
гр. Варна, ул."Братя Георгиевич" № 36, етаж 5, офис 16 9 500 €
18 580 лв.
Открито 12,27 м2
Продава
Ново строителство
Код: 1075489
гр. Варна, ул."Братя Георгиевич" № 36, етаж 5, офис 16
Закрито 27,76 м2
Продава
Ново строителство
Код: 1075500
гр. Варна, ул."Братя Георгиевич" № 36, етаж 5, офис 16 14 000 €
27 382 лв.
Закрито 12,63 м2
Продава
Ново строителство
Код: 1075513
гр. Варна, ул."Братя Георгиевич" № 36, етаж 5, офис 16 9 500 €
18 580 лв.
Открито 12,50 м2
Продава
Ново строителство
Код: 1075490
гр. Варна, ул."Братя Георгиевич" № 36, етаж 5, офис 16
Закрито 26,91 м2
Продава
Ново строителство
Код: 1075501
гр. Варна, ул."Братя Георгиевич" № 36, етаж 5, офис 16
Закрито 16,28 м2
Продава
Ново строителство
Код: 1075514
гр. Варна, ул."Братя Георгиевич" № 36, етаж 5, офис 16
Открито 12,50 м2
Продава
Ново строителство
Код: 1075491
гр. Варна, ул."Братя Георгиевич" № 36, етаж 5, офис 16
Закрито 26,21 м2
Продава
Ново строителство
Код: 1075504
гр. Варна, ул."Братя Георгиевич" № 36, етаж 5, офис 16
Открито 12,50 м2
Продава
Ново строителство
Код: 1075515
гр. Варна, ул."Братя Георгиевич" № 36, етаж 5, офис 16
Открито 12,50 м2
Продава
Ново строителство
Код: 1075492
гр. Варна, ул."Братя Георгиевич" № 36, етаж 5, офис 16 12 500 €
24 448 лв.
Закрито 19,72 м2
Продава
Ново строителство
Код: 1075505
гр. Варна, ул."Братя Георгиевич" № 36, етаж 5, офис 16
Открито 12,50 м2

Локация

Жилищна сграда Panorama Asparuhovo

гр. Варна, ул."Братя Георгиевич" № 36, етаж 5, офис 16

Най-популярно от Жилищна сграда Panorama Asparuhovo:

Продава
Ново строителство
Код: 1075476
гр. Варна, ул."Братя Георгиевич" № 36, етаж 5, офис 16 144 849 €
283 300 лв.
Тристаен 89,69 м2
Продава
Ново строителство
Код: 1075513
гр. Варна, ул."Братя Георгиевич" № 36, етаж 5, офис 16 9 500 €
18 580 лв.
Открито 12,50 м2
Продава
Ново строителство
Код: 1075481
гр. Варна, ул."Братя Георгиевич" № 36, етаж 5, офис 16 160 063 €
313 056 лв.
Тристаен 99,11 м2
Продава
Ново строителство
Код: 1075517
гр. Варна, ул."Братя Георгиевич" № 36, етаж 5, офис 16 9 500 €
18 580 лв.
Открито 12,50 м2
Продава
Ново строителство
Код: 1075482
гр. Варна, ул."Братя Георгиевич" № 36, етаж 5, офис 16 263 703 €
515 758 лв.
Четиристаен 226,63 м2
Продава
Ново строителство
Код: 1075518
гр. Варна, ул."Братя Георгиевич" № 36, етаж 5, офис 16 9 500 €
18 580 лв.
Открито 12,50 м2
Продава
Ново строителство
Код: 1075455
гр. Варна, ул."Братя Георгиевич" № 36, етаж 5, офис 16 152 733 €
298 720 лв.
Тристаен 110,94 м2
Продава
Ново строителство
Код: 1075483
гр. Варна, ул."Братя Георгиевич" № 36, етаж 5, офис 16 182 934 €
357 788 лв.
Тристаен 109,87 м2
Продава
Ново строителство
Код: 1075521
гр. Варна, ул."Братя Георгиевич" № 36, етаж 5, офис 16 9 500 €
18 580 лв.
Открито 12,50 м2
Продава
Ново строителство
Код: 1075457
гр. Варна, ул."Братя Георгиевич" № 36, етаж 5, офис 16 158 831 €
310 646 лв.
Тристаен 149,55 м2
Продава
Ново строителство
Код: 1075484
гр. Варна, ул."Братя Георгиевич" № 36, етаж 5, офис 16 181 365 €
354 719 лв.
Тристаен 144,76 м2
Продава
Ново строителство
Код: 1075522
гр. Варна, ул."Братя Георгиевич" № 36, етаж 5, офис 16 9 500 €
18 580 лв.
Открито 12,50 м2
Продава
Ново строителство
Код: 1075458
гр. Варна, ул."Братя Георгиевич" № 36, етаж 5, офис 16 148 930 €
291 282 лв.
Тристаен 144,42 м2
Продава
Ново строителство
Код: 1075485
гр. Варна, ул."Братя Георгиевич" № 36, етаж 5, офис 16 28 516 €
55 772 лв.
Закрито 33,98 м2
Продава
Ново строителство
Код: 1075459
гр. Варна, ул."Братя Георгиевич" № 36, етаж 5, офис 16 98 407 €
192 467 лв.
Двустаен 62,88 м2
Продава
Ново строителство
Код: 1075493
гр. Варна, ул."Братя Георгиевич" № 36, етаж 5, офис 16 14 500 €
28 360 лв.
Закрито 15,46 м2
Продава
Ново строителство
Код: 1075463
гр. Варна, ул."Братя Георгиевич" № 36, етаж 5, офис 16 154 732 €
302 629 лв.
Тристаен 98,87 м2
Продава
Ново строителство
Код: 1075500
гр. Варна, ул."Братя Георгиевич" № 36, етаж 5, офис 16 14 000 €
27 382 лв.
Закрито 12,63 м2
Продава
Ново строителство
Код: 1075464
гр. Варна, ул."Братя Георгиевич" № 36, етаж 5, офис 16 142 607 €
278 915 лв.
Тристаен 89,69 м2
Продава
Ново строителство
Код: 1075502
гр. Варна, ул."Братя Георгиевич" № 36, етаж 5, офис 16 7 704 €
15 068 лв.
Закрит 8,56 м2
Продава
Ново строителство
Код: 1075469
гр. Варна, ул."Братя Георгиевич" № 36, етаж 5, офис 16 157 585 €
308 209 лв.
Тристаен 99,11 м2
Продава
Ново строителство
Код: 1075503
гр. Варна, ул."Братя Георгиевич" № 36, етаж 5, офис 16 8 505 €
16 634 лв.
Закрит 9,45 м2
Продава
Ново строителство
Код: 1075470
гр. Варна, ул."Братя Георгиевич" № 36, етаж 5, офис 16 144 849 €
283 300 лв.
Тристаен 89,69 м2
Продава
Ново строителство
Код: 1075512
гр. Варна, ул."Братя Георгиевич" № 36, етаж 5, офис 16 9 500 €
18 580 лв.
Открито 12,27 м2

Научете първи за новите оферти

Получавайте актуална информация за пазара на недвижими имоти

Филтър

Тип имот

Не намирате това, което търсите? Обадете ни се!
Можем да го намерим за Вас!

гр. Варна, ул."Братя Георгиевич" № 36, етаж 5, офис 16

EKIPAT
 - 
English
 - 
en
French
 - 
fr
German
 - 
de
Russian
 - 
ru
Turkish
 - 
tr
Bulgarian
 - 
bg
Обади се