Asparuhovo 5
Свободен
Гараж 5 Жилищна сграда Asparuhovo
-1 Етаж
21,00 м2 Чиста площ
21,00 м2 Обща площ
0 Цена в евро
0 лв. Цена в лева
1075443 Код
132 Гледания
Район: Аспарухово
Строителсво: Тухла
Етаж: -1 от 6
Състояние: Ново
Издаване: БДС
Асансьор Паркомясто Електричество Входът се заключва Масивна външна врата Луксозни общи части
Закрит Гараж 5 ( ново строителство ) с код №: 1075443 на с площ 21,00 м2 намиращ се на етаж minus-1 от 6 етажа в Жилищна сграда Asparuhovo - район Аспарухово, гр. Варна, като типа на сторителството е тухла. Дата на завършване ( Акт 16 ) , състояние на издаване на апартамента - БДС.

>>> Направете запитване за Закрит Гараж 5


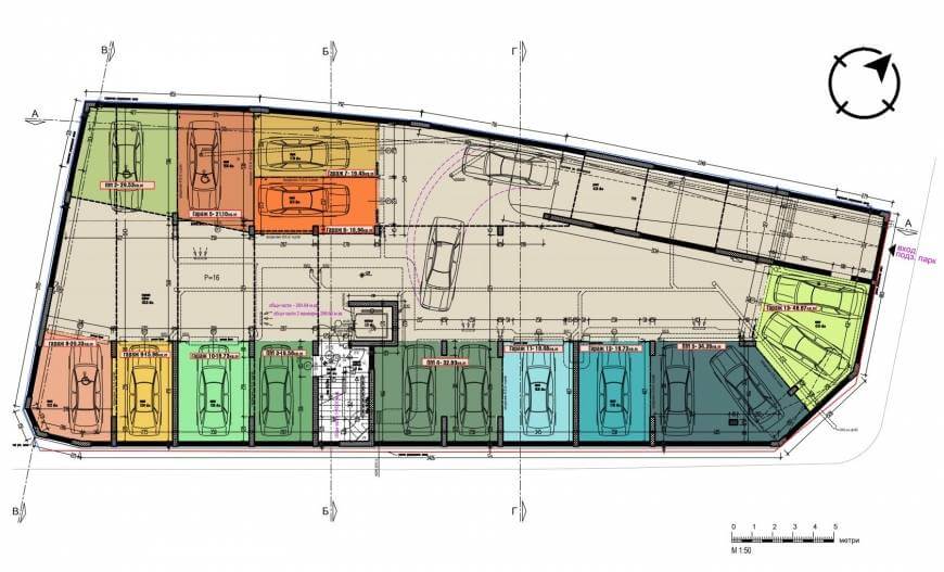
Схема на етаж -1

Жилищна сграда Asparuhovo

Локация

Жилищна сграда Asparuhovo

гр. Варна, ул."Братя Георгиевич" № 36, етаж 5, офис 16

Най-популярно от Жилищна сграда Asparuhovo:

Продава
Ново строителство
Код: 1075439
гр. Варна, ул."Братя Георгиевич" № 36, етаж 5, офис 16
Закрито 17,61 м2
Продава
Ново строителство
Код: 1075443
гр. Варна, ул."Братя Георгиевич" № 36, етаж 5, офис 16
Закрит 21,10 м2
Продава
Ново строителство
Код: 1075445
гр. Варна, ул."Братя Георгиевич" № 36, етаж 5, офис 16
Закрит 19,45 м2
Продава
Ново строителство
Код: 1075446
гр. Варна, ул."Братя Георгиевич" № 36, етаж 5, офис 16
Закрит 20,83 м2
Продава
Ново строителство
Код: 1075450
гр. Варна, ул."Братя Георгиевич" № 36, етаж 5, офис 16
Закрит 18,73 м2
Продава
Ново строителство
Код: 1075451
гр. Варна, ул."Братя Георгиевич" № 36, етаж 5, офис 16
Закрит 48,87 м2

Научете първи за новите оферти

Получавайте актуална информация за пазара на недвижими имоти

Агенция за недвижими имоти - Ekipat

Asparuhovo

Жилищна сграда

052 600 077

office@ekipat.bg

гр. Варна, ул."Братя Георгиевич" № 36, етаж 5, офис 16

гр. Варна, ул."Братя Георгиевич" № 36, етаж 5, офис 16

Свободен Код: 1075443
Гараж 5 Жилищна сграда
minus-1 Етаж
21,00 м2 Чиста площ
21,00 м2 Обща площ
0 Цена

Описание:

Схема на етаж minus-1

Жилищна сграда Asparuhovo

© 2026 Екипът, All rights reserved.

Дизайн, изработка и SEO от Web Factor България - Изработка на уеб сайтове и SEO оптимизация

Филтър

Тип имот

Не намирате това, което търсите? Обадете ни се!
Можем да го намерим за Вас!

гр. Варна, ул."Братя Георгиевич" № 36, етаж 5, офис 16

EKIPAT
 - 
English
 - 
en
French
 - 
fr
German
 - 
de
Russian
 - 
ru
Turkish
 - 
tr
Bulgarian
 - 
bg
Обади се